UFFICI RO11
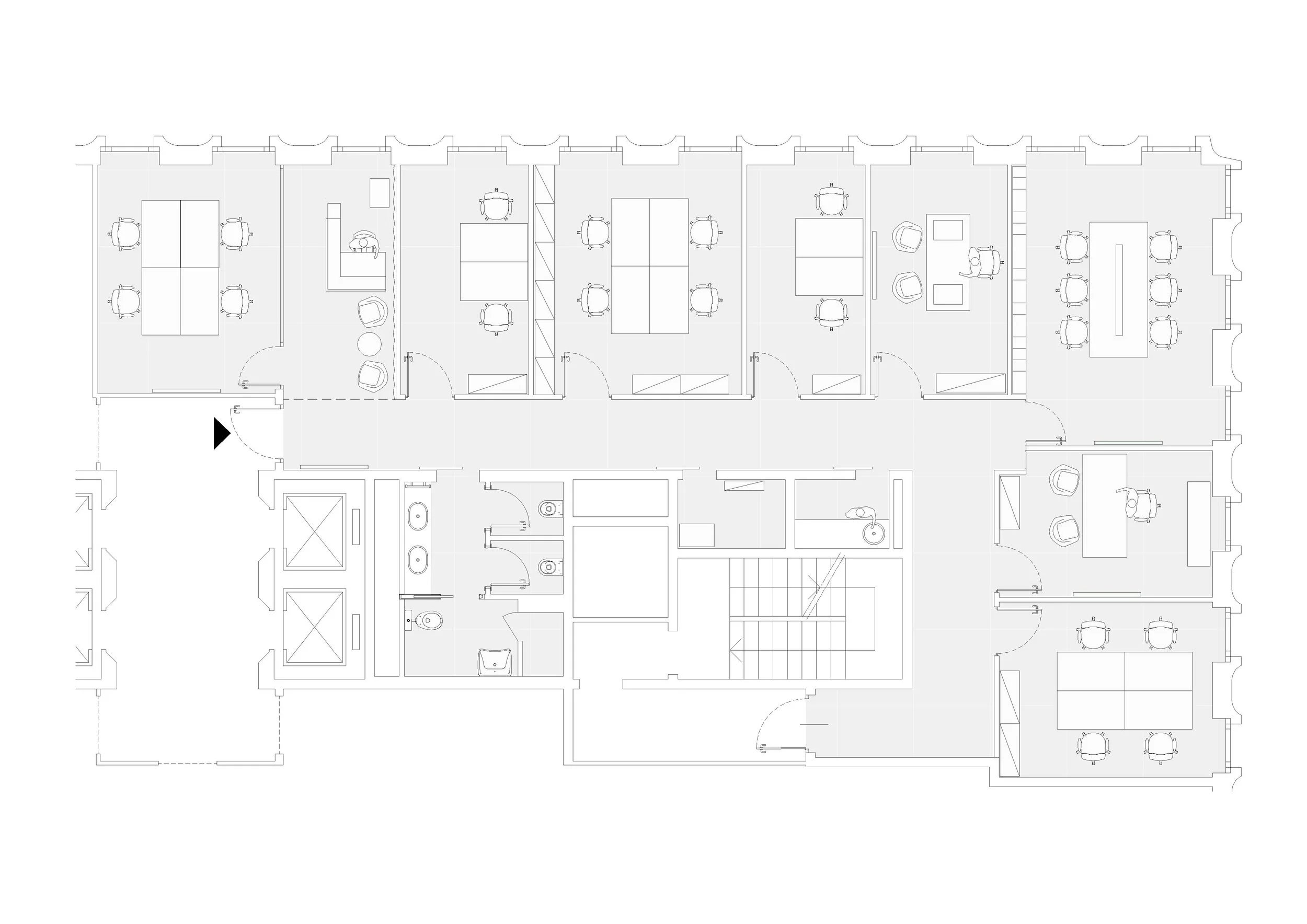
Uno spazio di lavoro di circa 300 mq per una nota realtà industriale e commerciale che tratta marchi di acque confezionate e minerali.
L’obiettivo principale è stato quello di riadattare lo spazio alle mutate modalità di lavoro dei dipendenti dell’azienda.
La luce è l’ elemento protagonista; essa vibra sulla parete materica all’ingresso e valorizza il colore blu navy del corridoio di distribuzione.
Location
MILANO zona Lambrate
Incarico
Ristrutturazione completa











